Проект дома «Ярославль»

Проект дома «Ярославль»

Проект дома «Ярославль»

115 м²

3 комнаты
+гостиная

1 этаж

Общие данные
  • Объект проектирования: индивидуальный жилой дом
  • Раздел проекта: архитектурно-строительные решения (АС)
  • Условия строительства: летние условия строительства
  • Требования к свойствам грунта: расчетное сопротивление грунта R не менее 10 кПа
Характеристики места строительства, для которых разработан типовой проект
  • Расчетная зимняя температура наиболее холодной пятидневки, об 0,92 (СП 131.1330.2018): минус 29°С
  • Расчетная внутреняя температура воздуха: 21°С
  • Градусо-сутки отопительного периода, ГСОП (СП 131.1330.2018 и СП 50.13330.2012): 5053 °С*сут/год
  • Снеговой район, снеговая нагрузка (карты Приложения Ж СП 20.1330.2016): IV район, 200 кгс/м² (2,0 кПа)
  • Сейсмичность района строительства по шкале MSK-64 (СП 14.1330.2018): менее 6 баллов
Технико-экономические показатели
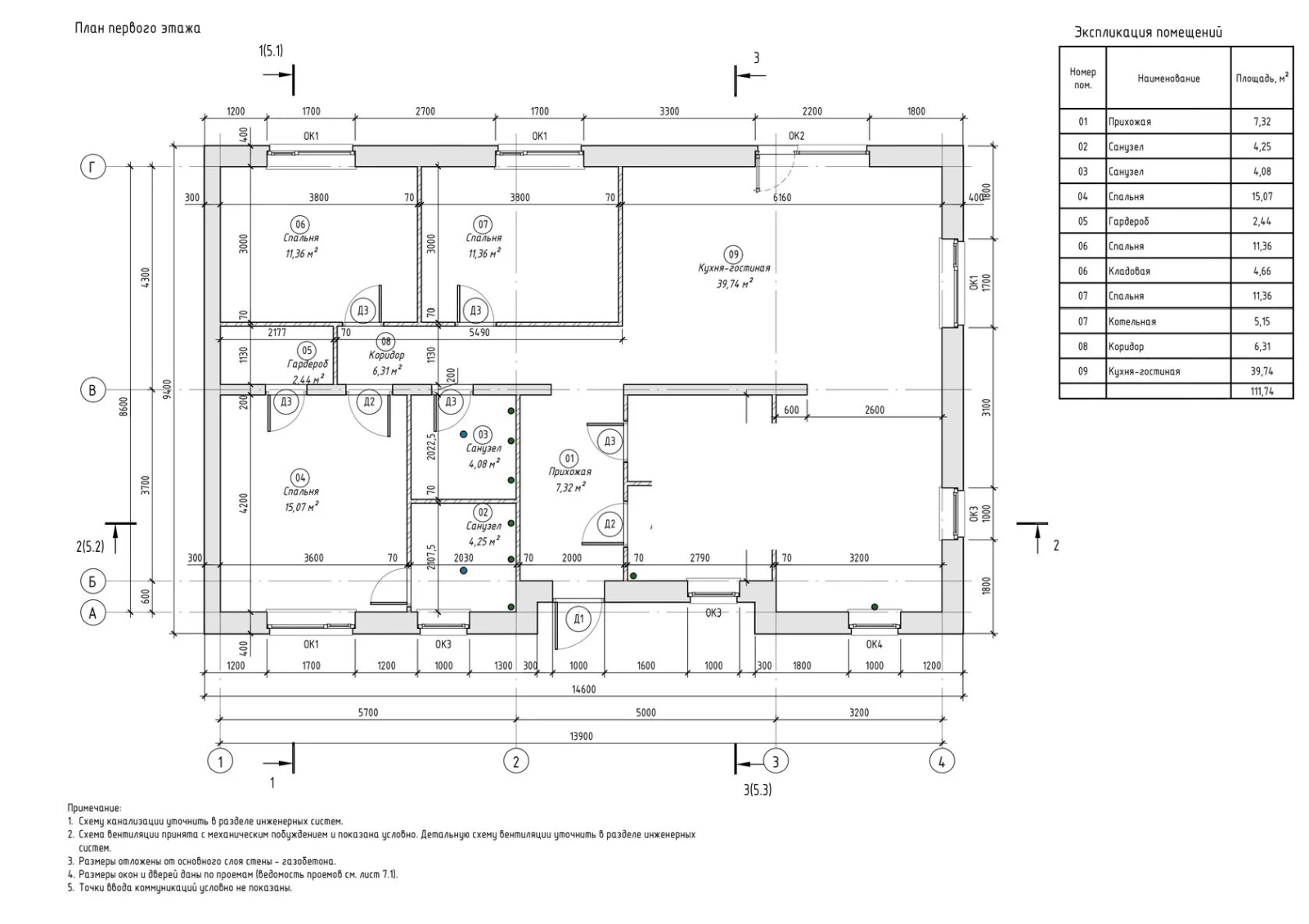
  • Площадь застройки: 160,32 м²
  • Общая площадь здания (сумма площадей помещений): 115 м²
  • Площадь кровли здания (включая кровлю террасы и крыльца): 195,65 м²
Объемно-планировочные решения
  • Количество наземных этажей: 1
  • Наличие подвала или цокольного этажа: нет
  • Габаритные размеры дома в плане: 9,4x14,7 м
  • Габаритные размеры дома в плане (с учетом террасы и крыльца): 14,1x14,7 м
  • Высота первого этажа (от пола до потолка): 2,890 м
  • Проектная нулевая отметка: уровень чистого пола 1-го этажа
  • Верхняя высотная отметка здания: + 4,842 м
Конструктивные решения
  • Наружные стены: кладка из газобетонных блоков торговой марки «ГРАС» размерами 600х250х300 мм / D300 (не выше) / В1,5 (не ниже) ГОСТ 31360-2024 на цементном клеевом растворе для тонкошовной кладки или ППУ-клее; система штукатрного фасада — 5 мм.
  • Внутренние несущие стены: кладка из газобетонных блоков торговой марки «ГРАС» размерами 600х250х200 мм / D500 (не ниже) / В3,5 (не ниже) ГОСТ 31360-2024 на цементном клеевом растворе для тонкошовной кладки или ППУ-клее.
  • Перегородки: кладка из газобетонных блоков торговой марки «ГРАС» 600x250x100 мм (150) / В2,5 / ГОСТ 31360-2024 на цементном клеевом растворе для тонкошовной кладки или ППУ-клее.
  • Вид фундамента: монолитный ленточный фундамент / плитный фундамент.
  • Перекрытие чердачное: по деревянным балкам с теплоизоляцией эковатой.
  • Конструкция крыши: двускатная

Смотреть видео

Проект реализован в 2025 году из энергоэффективного блока D300 B2.0

Сравнение кладок стены

С D300 вы экономите не только на строительстве, но и на отоплении — дом остаётся тёплым без дополнительных затрат.

*расчет стоимости материалов без учета работ для Приволжского федерального округа (ПФО)

Экономические показатели по проекту дома «Просто дом»

Стоимость фундамента
Наименование Единица измерения Количество по проекту Стоимость, руб. Примечание
Фундамент дома + терраса и крыльцо с навесом м³ 10,56 93 023 Рекомендуемый запас 5%
Терраса и крыльцо, Теплоизоляция отмостки, террасы и крыльца, Отмостка, Отсыпка котлована, Гидроизоляция первого ряда кладки и выравнивающий слой м³ 2,30 93 889 Рекомендуемый запас 5%
Итого: 186 913
Стоимость несущих стен и перегородки по проекту
Наименование материала Использование в конструкции Единица измерения Количество по проекту Замена на альтернативный материал Кол-во в единицах Цена за единицу Стоимость, руб. Примечание
АГБ D300 (В2.0) 600х300х250 мм Наружные стены м³ 36,72 36,72 6 950 255 204 рекомендуемый запас 5%
АГБ D500 (В2.5) 600х75х250 мм Обкладка монолитного пояса м³ 2,06 П-образный блок 600x300x250, шт. 82 660 54 120 рекомендуемый запас 5%
Клей для тонкошовной кладки Кладка стен и перегородок меш. 53,00 Клей Пена ГРАС, баллон 23 630 14 490 клей тонкошовный 355 р.*53 меш. = 18 815руб.
СППу, М175, 498х115х248 мм Внутренняя несущая стена м³ 3,05 Блоки D500, В3,5 600х200х250 мм 5,4 7150 38 610 рекомендуемый запас 5%
СППо, М175, 498х70х248 мм Перегородки м³ 6,85 Перегородки D500, В2,5 600х100х250 мм 9 7150 64 350 рекомендуемый запас 5%
Перегородка кухня D500, В2,5 600х150х250 мм 1,8 7150 12 870 рекомендуемый запас 5%
Итого: 439 644
Стоимость кровельных работ
Наименование Единица измерения Количество по проекту Стоимость, руб. Примечание
Крыша дома м² 173,90 271 949 По рекомендации производителя
Крыльцо м² 7,95 15 160 По рекомендации производителя
Терраса м² 12,68 19 703 По рекомендации производителя
Итого: 306 812
Стоимость работ по общей отделке дома
Наименование материала Единица измерения Количество по проекту Стоимость, руб. Примечание
Отделка пола тип 1 ламинат м² 99,94 124 350 Рекомендуемый запас 5%
Отделка пола тип 2 (керамическая плитка по слою клея) м² 14,00 29 854 Рекомендуемый запас 10%
Пол дома + стяжка м³ 9,07 147 826 Рекомендуемый запас 5%
Отделка внутренняя и наружная меш. 112,00 160 234 Рекомендуемый запас 5%
Теплоизоляция первого ряда кладки м³ 0,81 8 080 Рекомендуемый запас 5%
Армирование ГБ кладки, Перемычки, Монолитный пояс, Перекрытие, утеплитель м.п. 46,00 179 734 Рекомендуемый запас 15%, при длине прутов 6 м — 20 %
Дверь входная / Дверной блок межкомнатный шт. 1,00 88 000
Окна в сборе + светопрозрачное заполнение м² 24,73 340 000
Натяжной потолок м² 112,39 91 200 По рекомендации производителя
Итого: 1 169 278
Стоимость по инженерным работам
Работы Стоимость, руб. Примечание
Водоснабжение + канализация 82 850 По рекомендации производителя
Котельная, теплые полы + водопровод 83 350 По рекомендации производителя
Электрика 50 129 По рекомендации производителя
Вентиляция 26 000 По рекомендации производителя
Итого: 242 329
Стоимость по работам техники
Работы Стоимость, руб.
Техника (бетононасос, трактор, кран, доставка) 196 500
Итого: 196 500
Получить консультацию
Нажимая на кнопку "Отправить", я даю
согласие на обработку персональных данных
Добавить отзыв
Нажимая на кнопку "Отправить", я даю
согласие на обработку персональных данных
Прежде чем Вы перейдёте далее выберите, пожалуйста, Ваш регион*:
* В зависимости от региона, цены на продукцию, доставку и иные услуги, могут отличаться